Predstavljamo vam odličan troiposoban stan u centru prelepog naselja Vidikovac.
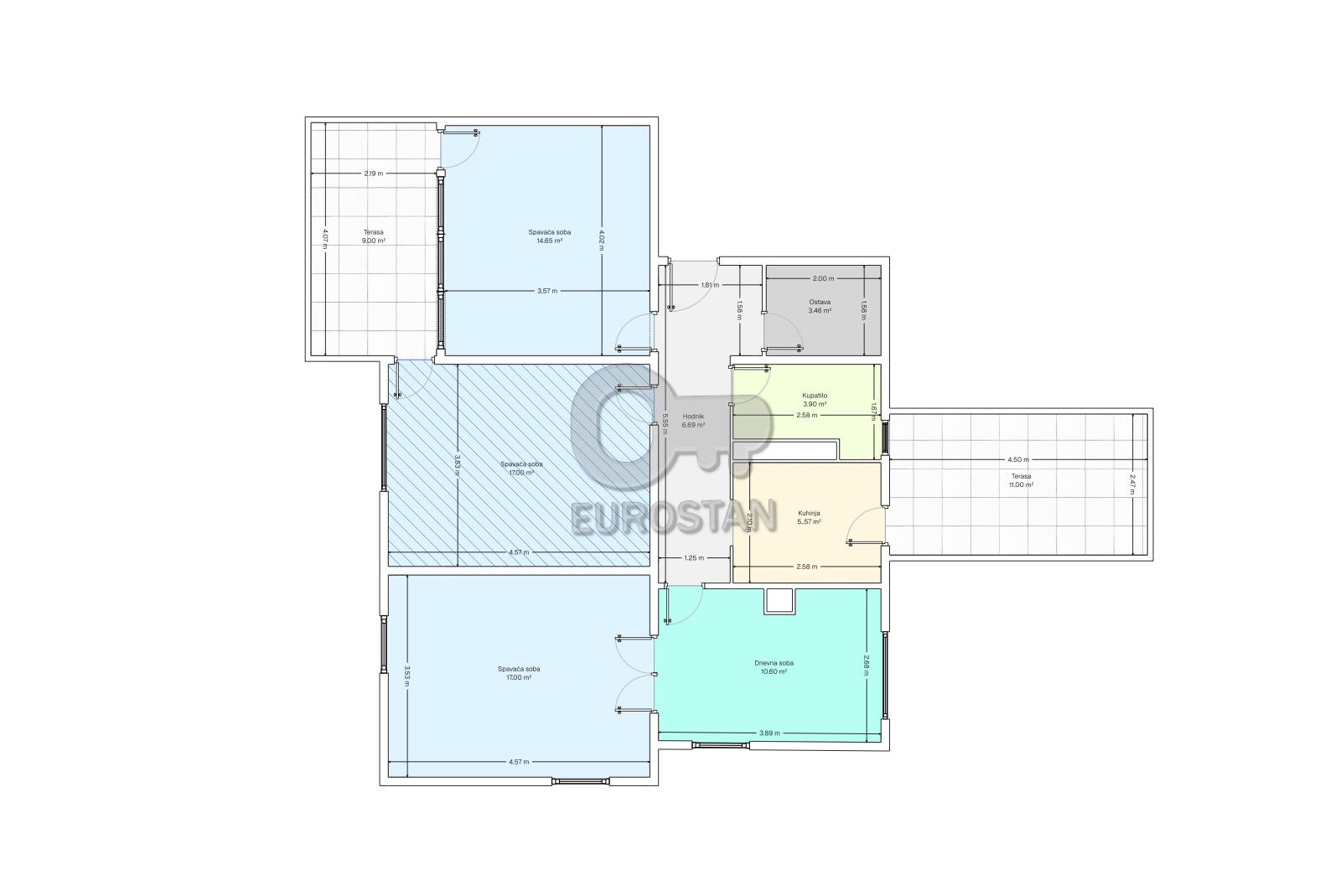
Stan je trostrano orijentisan, izuzetno svetao, građevinske površine 99m2 ( dve terase od 9m2 i 11m2), korisne 78m2 i lako adaptivan u dve stambene jedinice.
Pozicioniran u neposrednoj blizini velikog javnog parkinga, autobuskih stajališta , marketa i ostalih komercijalnih sadržaja neophodnih za udoban život.
Prostorije: hodnik , dnevna soba, kuhinja , 3 spavaće sobe, kupatilo, ostava, 2 velike terase i podrum.
Stan je BOŽANSTVEN i za svaku preporuku.
(agencijska provizija 2%)
| Tip nekretnine | stan |
|---|---|
| Dupleks | |
| Država, Grad | Srbija, Beograd |
| Opština | Rakovica |
| Lokacija | Vidikovac |
| Ulica | Vidikovački venac |
| Struktura | 3.5 |
| Površina | 90 m2 |
| Spratnost | 6/8 |
| Grejanje | centralno grejanje |
| Uknjižen | |
| Broj terasa, lođa | 2 , 0 |
| Interfon | |
| Broj tel. linija | 0 |
| Broj liftova | 1 |
| Tip usluge | prodaja |
| Cena | 240,000 € |
| Cena po kvadratu | 2,666.67 € |